À l’angle des rues Nollet et de la Condamine (Paris XVIIe), NZI Architectes signe la transformation d’un parking des années 1930 en résidence sociale de 83 logements pour la RIVP. Un projet de réhabilitation lourde qui démontre le potentiel de l’existant dans un contexte urbain dense, et qui a su conjuguer la qualité d’usage, la sobriété constructive et l’attention portée au paysage.
Plutôt qu’une démolition totale, le projet s’appuie sur la structure existante pour recomposer les volumes, les circulations et les vues, et introduire un cœur d’îlot en pleine terre. Cette intervention précise, inscrite dans l’épaisseur du site, révèle le potentiel spatial et paysager d’un bâti longtemps considéré comme obsolète.




Un site contraint comme point de départ
Totalement enclavée et bordée par huit copropriétés, la parcelle du 29 rue Nollet présentait des contraintes urbaines fortes : vis-à-vis rapprochés, profondeurs de vues limitées et impossibilité d’une construction neuve qualitative sans multiplier les retraits et les logements orientés au nord. À ces contraintes s’ajoutaient les impacts environnementaux et les nuisances d’une démolition totale. Face à ce constat, NZI Architectes fait le choix de la transformation. La structure existante du parking, majoritairement en béton et en bon état, offrait une base saine capable d’accueillir le programme. Certains éléments patrimoniaux, notamment les ouvertures de type atelier d’artiste, ont également été intégrés à la réflexion architecturale.



Créer de la lumière et du paysage
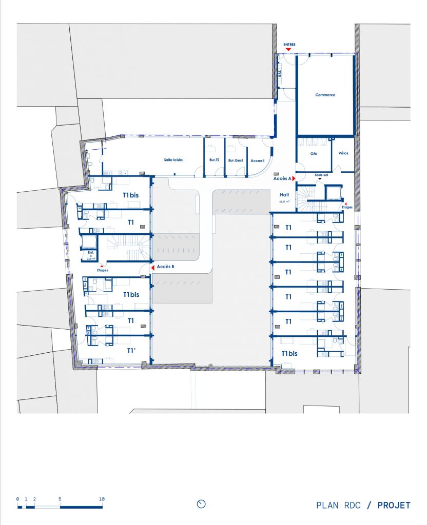
Le parti pris architectural repose sur la démolition ciblée d’une trame complète dans l’axe nord-sud, permettant de scinder l’existant en deux bâtiments distincts et de libérer un cœur d’îlot en pleine terre. Cette incision transforme radicalement la qualité spatiale du site : elle introduit des apports solaires directs, des percées visuelles et un véritable rez-de-jardin autour duquel s’organisent les espaces communs.
Les deux nouveaux volumes, éloignés de plus de 14 mètres, s’inscrivent dans la volumétrie existante sans surélévation. Ils offrent aux logements une orientation est/ouest – excluant toute façade au nord et améliorant les conditions de vues pour le voisinage. Les circulations, intégralement à l’air libre et éclairées naturellement, participent d’une nouvelle porosité visuelle et paysagère.



Sobriété constructive et qualité d’usage
Le projet combine conservation structurelle et techniques constructives légères. Les structures béton et les fermes métalliques existantes sont préservées, et les remplissages sont réalisés en ossature bois préfabriquée avec isolation biosourcée en laine de bois, de façon à limiter les charges sur l’existant et réduire les nuisances de chantier. Sur rue, le bâtiment est reconstruit en CLT, avec des menuiseries bois et une enveloppe performante répondant aux exigences environnementales (NF Habitat HQE, E3C1, label biosourcé). Les logements, majoritairement de type T1 et T1 bis, privilégient des volumes simples et lisibles, ouverts sur le cœur d’îlot. Les espaces partagés – laverie, salle commune, bureaux – sont traités enfin comme des lieux qualitatifs, largement éclairés et en lien direct avec le paysage, affirmant le rôle du collectif dans l’habitat social contemporain.
Maîtrise d’ouvrage : RIVP
Maîtrise d’œuvre : NZI Architectes (mandataire)
Ecallard (économie)
I+A (structure)
B52 (fluides)
Etamine (HQE)
Entreprise générale : Genere







