À Bayonne, la réouverture du musée Bonnat Helleu s’inscrit dans une transformation profonde du lieu et de ses usages. Entre restitution, extension et réagencement, le projet engage une réflexion sur la manière d’habiter un héritage, de le rendre lisible et praticable sans en figer les tensions.
L’intervention s’inscrit dans un ensemble constitué par ajouts successifs, dont la cohérence s’était progressivement diluée. Plutôt que de chercher une unité formelle, le projet travaille les continuités intérieures. Il restaure des alignements, rétablit des circulations, et redonne à la lumière une fonction structurante. Celle-ci accompagne les œuvres, organise le parcours, introduit des respirations, ménage des seuils. Le regard circule entre les salles, porté par des variations d’intensité et d’ouverture qui redonnent au musée une épaisseur spatiale sensible.
Faire entrer la ville
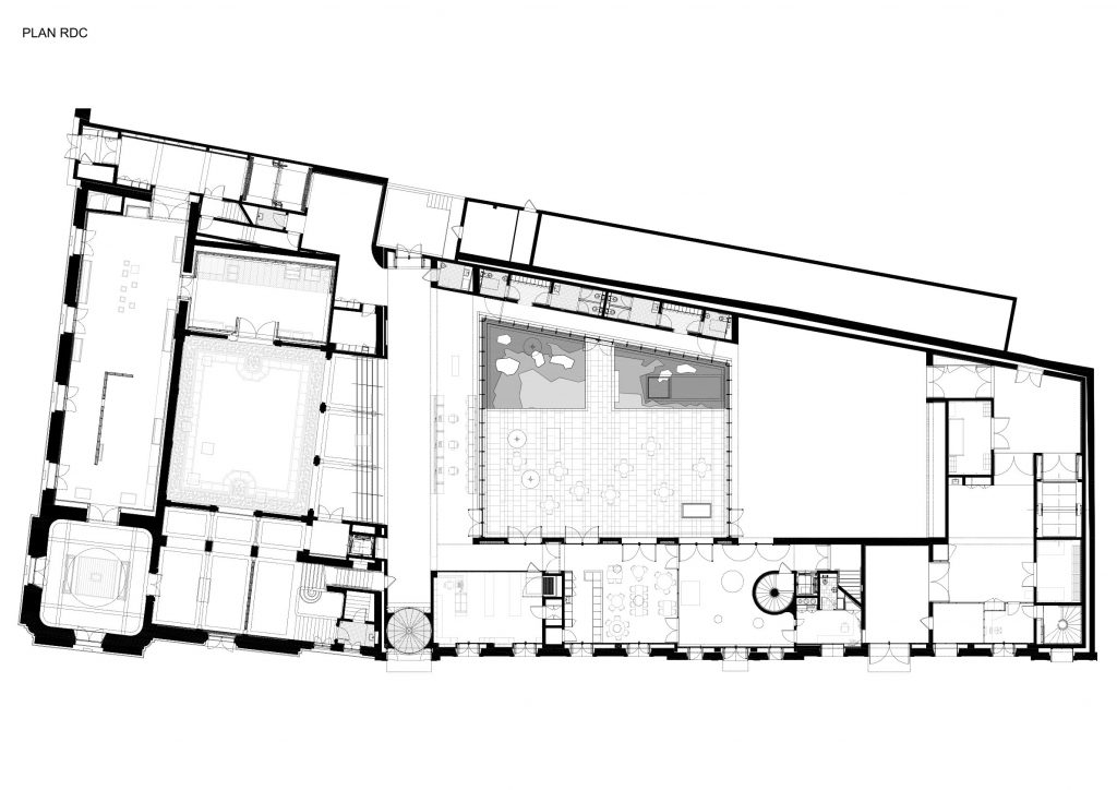
La transformation la plus décisive tient à l’introduction d’une traversée. Une percée dans la façade rue Jacques Lafitte installe une galerie voûtée qui prolonge l’espace public à l’intérieur du musée. Cette rue couverte recompose les rapports d’échelle et d’adresse. L’accès se déploie en séquence, dans un glissement progressif du dehors vers le dedans. Le musée devient poreux, traversable, exposé aux flux urbains qu’il capte et redistribue. Cette porosité lui confère une présence plus active dans la ville.
Un dispositif resserré
L’extension réalisée sur l’emprise de l’ancienne école du Petit Bayonne permet de rassembler des fonctions jusqu’alors dispersées. Réserves, ateliers et espaces de travail s’inscrivent désormais dans un ensemble continu, au plus près des espaces d’exposition. Ce resserrement modifie l’économie interne du musée : les circulations techniques se simplifient, les conditions de conservation se stabilisent, et le travail des équipes gagne en proximité avec les œuvres. Ce rapprochement, discret pour le visiteur, participe pourtant d’une transformation structurelle en influant directement sur les conditions de conservation et la préparation des expositions.



Des seuils actifs
Le projet accorde enfin une attention particulière aux lisières. Les ouvertures sur rue sont redessinées pour instaurer des relations visuelles et d’usage. La boutique et le café prennent place dans cette épaisseur, s’adressant autant aux visiteurs qu’aux passants. À l’intérieur, le patio historique et la cour deviennent des points d’articulation, où se croisent les parcours. Le cloître, enfin, s’affirme comme une pièce urbaine à part entière, dont la présence rayonne au-delà des murs du musée. Autant de dispositifs qui travaillent le musée comme une suite de passages et de points d’arrêt.



Un musée en tension
Ce qui se joue ici tient moins à une image qu’à une mise en relation. Entre patrimoine et transformation, entre intériorité et exposition à la ville, le projet maintient une tension productive. Ne cherchant ni à lisser les discontinuités ni à les souligner, il les rend opérantes. Le musée Bonnat Helleu se donne ainsi comme un espace en mouvement, où l’expérience du visiteur se construit dans l’épaisseur des parcours, et où l’architecture agit comme une médiation.



___
Maître d’ouvrage : Mairie de Bayonne
Maître d’oeuvre : Architecte mandataire : BLP & Associés (Olivier Brochet, Dominique Enilorac)
Architecte associé : Olivier Soupre
Surface : 6 000 m² dont Surfaces accueil du public : 900 m²
Surfaces collections / expositions temporaires : 3 200 / 300 m²
Surfaces bureaux et ateliers : 950 m²
Surfaces des réserves : 650 m²
Coût des travaux : 26,1 M€ HT
Crédit photographique : J-F Tremege



