À Gonesse, le collège Philippe Auguste engage sa transformation par l’ajout d’un restaurant scolaire autonome et la reconversion de l’ancienne demi-pension en salles d’enseignement. MARS Architectes y déploie une architecture qui s’écarte de l’orthogonalité héritée des années 1970 pour introduire des séquences paysagères, des circulations apaisées et un rapport renouvelé au sol et au végétal.
Construit à la fin des années soixante-dix, l’établissement portait les marques d’une époque dominée par le zoning et la juxtaposition de volumes peu articulés. L’implantation de la nouvelle demi-pension prend acte de ce contexte. Plutôt que d’épaissir le bâti entre cour et limite parcellaire, le projet accentue sa forme longiligne et assume un léger désaxement. Trois volumes agglomérés, unifiés par un bardage métallique, composent une silhouette basse, presque opaque depuis la cour.
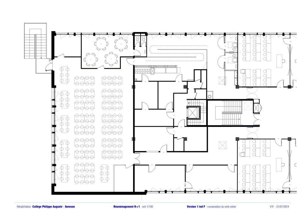
Le déplacement de la restauration dans un bâtiment autonome introduit une rupture dans la continuité des espaces d’enseignement. La salle à manger se déploie en longueur, tournée vers une bande végétale dense qui filtre la lumière. La finesse du plan offre un maximum de tables face au jardin. À l’écart, la salle des professeurs occupe la pointe nord-est, protégée des flux. La cuisine, organisée autour d’un accès logistique clair, bénéficie elle aussi de vues sur un patio, apportant un apaisement inattendu à l’espace de travail.



La séquence comme principe spatial
L’intervention se lit comme une succession de seuils. Une galerie couverte, marquise ondulante en béton portée par de fins poteaux, accompagne le cheminement depuis la cour. Elle s’inscrit dans un jardin légèrement surélevé dont les murets deviennent assises. Cet espace d’attente à l’abri constitue une transition entre l’agitation du préau et le temps du repas.
À l’intérieur, le parcours est réglé avec précision : lavage des mains, attente, self, puis ouverture sur la salle à manger. Les flux entrants et sortants sont dissociés, la laverie placée à proximité de la sortie vers la cour. Chaque moment correspond à une atmosphère spécifique. L’architecture et le paysage sont pensés conjointement, de sorte que l’expérience du déjeuner ne soit pas réduite à une fonction, mais devienne une respiration structurée dans la journée scolaire.



Paysage et transformation du déjà-là
Le paysage agit comme fil conducteur. À l’est de la salle à manger, une bande végétale dense mêle arbres à tiges, cépées et enrochements, créant un écran intimiste. Plus au nord, l’ambiance se fait plus aérée pour la salle des professeurs. À l’entrée, des plantations basses accompagnent la courbe de la marquise. Chaque séquence dialogue avec un univers végétal particulier, et l’architecture semble s’y glisser plutôt que s’y imposer.
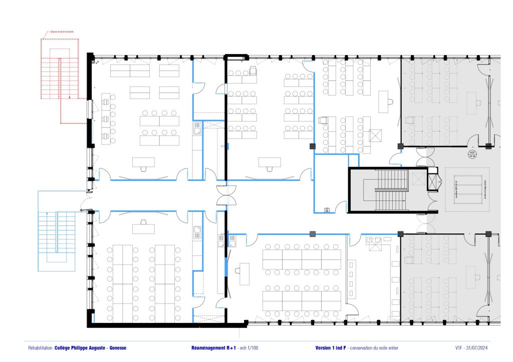
En parallèle, l’ancienne demi-pension, située dans le bâtiment existant, fait l’objet d’un curage et d’une réorganisation intérieure afin d’accueillir de nouvelles salles de classe et un fablab. La transformation respecte les trames structurelles et les principes distributifs d’origine, tout en clarifiant les circulations. L’opération articule ainsi extension et réhabilitation, paysage et bâti, dans une stratégie qui privilégie la qualité d’usage et la lisibilité des parcours au sein d’un ensemble longtemps fragmenté.
___
Localisation : Collège Philippe Auguste, Gonesse (Val-d’Oise)
Maîtrise d’ouvrage : Conseil départemental du Val-d’Oise
Maîtrise d’œuvre : MARS Architectes
Paysagiste : Lignes
Programme
Extension accueillant la demi-pension, la cuisine et des vestiaires.
Réhabilitation du bâtiment existant avec transformation de l’ancienne cantine en salles d’enseignement et fablab.
Surface
Restaurant scolaire : 1 126 m²
Réhabilitation : 520 m²
Coût des travaux : 5 135 000 € HT



