L’agence TAA vous présente l’un de ses projets : « Home Spirit », qui a pour objet la construction neuve de 73 logements du T2 au T5 dans un bâtiment de logements collectifs en R+10, à Toulouse (Région Occitanie, France).
Le terrain concerné par la présente opération est situé au sud-est de la ville de Toulouse dans le quartier de Montaudran. La zone est en pleine mutation urbaine ; il se densifie de façon rapide par des projets de ZAC mais également par la construction de programmes immobiliers plus diffus. La parcelle se trouve dans la ZAC TOULOUSE AEROSPACE ; elle a pour particularité de donner directement sur la Piste des Géants au sud. Demain, l’arrivée de la 3e ligne de métro permettra de desservir le site grâce à une station non loin de la parcelle. En effet, une station sera localisée à proximité de la halte ferroviaire et constituera un pôle d’échanges multimodal.
La volumétrie du bâtiment représente un contraste entre le socle et les étages. Le socle, avec une géométrie plus orthogonale, et les étages avec des lignes arrondies (permettant d’adoucir l’écriture architecturale) donnent une identité au bâti. Cette identité est encore plus mise en valeur par le système des terrasses/balcons, qui donne des façades rythmées et très végétalisées. La mise en valeur des espaces extérieurs reste un axe important du projet dans sa conception globale tant urbaine qu’architecturale et paysagère.


Le paysage prend une place prépondérante sur le projet. Cette sensibilité paysagère devient un véritable trait d’union entre les espaces verts extérieurs et intérieurs. Elle accompagnera le résident et participera à la qualité des lieux communs. Les terrasses plantées jouent un rôle important puisque leur surface va de 40m² pour les T5 à 16m² pour les T2. Elles sont aménagées comme de véritables pièces à vivre supplémentaires et sont de véritables jardins suspendus qui prolongent l’espace naturel environnant.
Le socle bâti, principe fédérateur de la ZAC Toulouse Aerospace, règne jusqu’au niveau R+2 de notre projet. Tantôt transparent tantôt actif, il connecte le bâtiment avec son environnement proche et fait le lien avec le bâti, la venelle piétonne, les pistes cyclables. Le socle intègre des espaces communs qui joueront un rôle important et actif pour la vie de la résidence et du quartier : salle de sport (60m²), salle de jeux pour les enfants (51m²), salle commune à vivre (120m²).


Les logements aux étages sont desservis par une coursive, un espace de qualité où la végétation continue de se développer grâce à la présence des jardinières et des plantes grimpantes sur la façade nord. La qualité spatiale généreuse, la luminosité et la sensibilité paysagère font que les circulations communes deviennent de véritables lieux d’échange entre habitants.
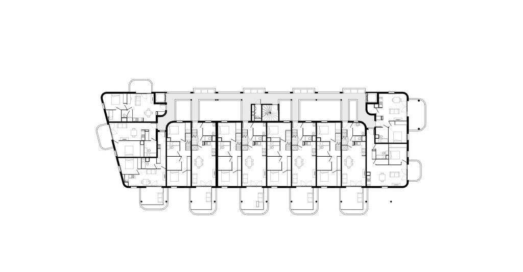
La disposition alternée de souplex et de duplex superposés dans le corps principal du bâtiment nous a permis de réécrire l’archétype de la « maison individuelle » dans une version du bâtiment d’habitation collectif. Cette disposition permet à chaque habitant d’accéder à son logement par une passerelle privative depuis le volume de la coursive, comme on accède à son pavillon depuis la rue. Ce même dispositif, de souplex et de duplex alternés, permet aux terrasses/balcons de bénéficier aux habitants d’intimité, à l’instar d’un jardin dans un pavillon et de les comparer grâce à leurs dimensions qui sont exceptionnelles.


Pour les villas sur le toit, la référence au pavillon est encore plus littérale, car on peut faire le tour de sa villa tout comme dans son pavillon, avec son jardin tout autour. Le concept mis en œuvre sur ce projet permet à tous les appartements d’être à minima doublement orientés et majoritairement traversant. La silhouette du bâtiment devient très clairement identifiable par l’alternance des terrasses/balcons au-dessus du socle et par le rythme des villas duplex en attique.

___
Maître d’ouvrage : GreenCity Immobilier | Sporting Promotion
Maître d’œuvre : TAA Toulouse | Cheffe de projet Associée : Marinell Van Wyk | Chef de projet Adjoint : Jean-Baptiste Blondel | Architecte associé : MR3A
Surface : 5 122m2
Budget : 9M€



