AccueilRéalisationsEquipementFaire territoire : Auer Weber et DVVD Architectes

Faire territoire : Auer Weber et DVVD Architectes

À l’orée du nouveau quartier Aérolians, au sud de l’aéroport de Roissy, l’agence allemande Auer Weber, associée à DVVD Architectes, signe Fly Parc, un ensemble d’activités à étages entre showroom urbain et outil industriel. Ce bâtiment hybride entend renouveler le modèle du parc d’activités en misant sur la compacité, la flexibilité et la qualité d’usage.

Dans la vaste opération d’aménagement Aérolians – près de 200 hectares qui mêleront logements, bureaux, commerces, hôtels et équipements publics –, Fly Parc fait figure de pionnier. Installé à la lisière du futur quartier, le projet annonce la couleur : le parc d’activités n’est plus relégué en périphérie mais participe de l’image urbaine. Sa façade de bois, de polycarbonate et de verre se déploie le long de la rue du Sausset comme une vitrine, donnant à voir un lieu de production et de services débarrassé de ses oripeaux utilitaires.

Un parc d’activités vertical
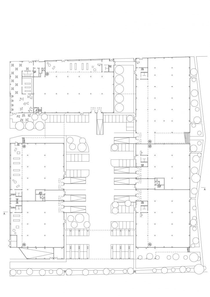
L’innovation tient d’abord à la typologie. Là où les zones d’activités s’étalent bien souvent à l’horizontale, Fly Parc superpose ses programmes sur deux niveaux. En rez-de-chaussée, de vastes entrepôts accessibles par une cour intérieure accueillent les flux logistiques. À l’étage, des unités plus petites, pensées pour les PME et accessibles par rampe, prolongent l’offre. Entre les deux, une trame souple de 8 × 8 mètres autorise des configurations variées, bureaux en mezzanine ou ateliers en duplex. Une manière de densifier l’usage du sol, tout en ouvrant le modèle à une diversité d’acteurs économiques.

Des espaces vécus
Loin de l’image austère des hangars, Fly Parc revendique une véritable qualité de vie pour ses usagers. Les percées entre les trois volumes bâtis ménagent des vues vers la vallée du Sausset et relient le site aux espaces verts. Terrasses et jardins sur les toits, bandes vitrées et transparences en polycarbonate diffusent lumière et convivialité. Un quart de la parcelle a été végétalisé, créant une respiration bienvenue dans ce territoire en pleine mutation. Loin de la simple cour logistique, un morceau de ville se dessine, habité et ouvert.

Un prototype pour la métropole dense
En empilant les programmes et en assumant son rôle d’interface urbaine, Fly Parc propose une autre manière d’occuper le sol. Moins consommateur d’espace, plus attentif à ses usagers et à son environnement, il esquisse un modèle exportable à d’autres territoires métropolitains où la pression foncière et la transition écologique imposent de repenser les formes de l’activité économique.

Fondée en 1980 par Fritz Auer et Carlo Weber, l’agence allemande Auer Weber s’est imposée comme l’une des signatures européennes capables de conjuguer rigueur constructive, intégration paysagère et attention durable aux usages. À Tremblay-en-France, Auer Weber parvienne à faire d’un parc d’activités un projet d’architecture et de ville.

___
Aménageur : Grand Paris Aménagements
Maître d’ouvrage : Foncière Magellan et Harbert Management Corporation
Maître d’oeuvre : Auer Weber – DVVD Architectes
Mandataire : GSE, Olivet
Paysagiste : Comptoir des projets
Surface de plancher : 22.292 m²  

photographe Nicolas Grosmond

ARTICLES SIMILAIRES

A lire aussi