texte rédigé par les architectes
« La conception et la construction d’un siège social permettent de donner une représentation physique à l’entreprise et constituent l’occasion de formaliser ses valeurs. Dans ce site, nous avons créé un lieu adapté, original et inédit, un projet conçu pour ici et nulle part ailleurs. L’idée fut de concevoir un bâtiment ancré dans son paysage d’accroche, une architecture vernaculaire, qui utilise les forces de son site, et en même temps véhicule une idée de permanence partageable au temps présent. »
Le projet se fonde sur une métaphore triple, celle de l’arbre, du bosquet et de la clairière. L’arbre puise dans son milieu le plus proche ses ressources, il s’y enracine et protège. Cet abri multiplié forme le bosquet, constituant l’échelle du lieu requis, nécessaire à la vie collective de 500 personnes. Les arbres structurent le site et enfin, au centre, la clairière devient le lieu de rassemblement, l’agora d’où tout part et vers quoi tout converge.
Une implantation des bâtiments qui utilise les forces du site et en corrige les défauts. Le projet s’installe naturellement dans le site, dont il réorganise toute la géométrie. Il utilise à son profit les qualités paysagères du terrain ; la forêt présente, les vues, les orientations, la topographie, la proximité du lac. Il corrige les effets négatifs du voisinage : la présence du centre aquatique voisin et des bâtiments qui jouxtent le terrain au nord, par des modifications de la topographie et par un boisement renforcé. Le paysage, ainsi transformé et adapté, accueille le bâtiment du siège de CEVA comme un élément nouveau qui entre en harmonie avec l’environnement existant.
La topographie est adaptée pour mieux protéger le lieu de vie des utilisateurs des nuisances sonores et visuelles, tandis que les mouvements de terrain créés et les arbres plantés guident la vue vers des perspectives choisies dans la nature environnante et en occultent d’autres, opérant ainsi une sélection raisonnée sur l’environnement direct du bâtiment. Ce travail confirme et renforce la valeur du lieu avant d’y implanter le bâtiment majeur et ses annexes, en une organisation fusionnelle avec la nature, formant ici un lieu de vie complet.



Contexte
Le site dédié au nouveau siège de CEVA se trouve au nord de la commune de Libourne, dans le vaste espace protégé des Dagueys, à l’Est du lac. Il est implanté au sud du nouveau centre aquatique » la Calinésie » et à l’ouest du quartier des Charruauds. Le terrain de 10,19 hectares présente des enjeux forts de milieux naturels, flore et faune, sur sa partie sud-ouest, il s’inscrit dans des zones ZNIEFF et Natura 2000. Les bâtiments s’implantent volontairement au nord-est du terrain, partie constructible du site, afin d’être en retrait et de préserver les zones naturelles en lisière du lac des Dagueys.
Plusieurs entités
Un petit bâtiment d’accueil implanté à l’entrée du site et du parking pour veiller au contrôle des entrées et sorties sur le site du siège CEVA. Il réunit une zone d’accueil pour les visiteurs ainsi que la loge du gardien.
Un bâtiment tertiaire en rez-de-chaussée abritant la filiale France, adossé à un merlon reconfiguré qui protège et filtre l’ensemble du projet sur sa limite avec le centre aquatique la Calinésie. Il bénéficie d’une terrasse tournée vers le lac.
Un bâtiment principal de bureaux en position centrale dans une « clairière reconfigurée ». Il réunit les différentes entités du siège de CEVA autour d’un patio, un lieu ouvert sur le ciel mettant en relation visuelle toutes les personnes travaillant sur le site. Un cœur vide battant, un écosystème de nature. Ce bâtiment se développe sur trois niveaux de bureaux au-dessus d’un rez-de-chaussée comprenant les accueils, les démonstrateurs techniques, un amphithéâtre, un studio d’enregistrement et un restaurant. Cette implantation « éclatée » assure de nombreuses échappées et césures visuelles vers la lisière naturelle et fertile du site à l’ouest, le lac des Dagueys.



Un paysage en lanière est organisé; il comprend le parking, la voie d’accès principale, les allées arborées qui joignent les stationnements et le siège. Les noues récupératrices des eaux rythment cette nouvelle organisation du stationnement qui est ainsi intégrée à ce paysage nouveau.
Vers l’ouest, les merlons sont renforcés. Les terres déplacées et replantées permettent de créer entre le centre aquatique et le projet une véritable protection. Le bâtiment fonctionne comme un écosystème : il se «nourrit» de son sol, son socle/rez-de-chaussée, vit et travaille dans les étages et respire, profite de la vue et des jardins en belvédère depuis le dernier niveau et le toit. Le bas et le haut communiquent dans des usages communs et vivants «des pieds à la tête». Le bâtiment de forme circulaire a une épaisseur de « corolle » de 18 m. Il est évidé au centre autour d’un paysage intérieur : le patio.
Une trame constructive orthogonale de 5,4 m x 5,4 m assure la mise en place de plateaux polyvalents et souples pour des lieux aimables de travail et de vie. Cette trame permet une grande flexibilité des aménagements des espaces de travail : bureaux individuels, bureaux nomades, salons de travail, espaces de retrait, etc. Le rez-de-chaussée d’une hauteur généreuse de 4 m est très transparent car vitré sur toute sa hauteur sur une grande partie de ses façades intérieures et extérieures. Il forme un socle ouvert et vivant rassemblant une grande partie des espaces communs : le hall d’accueil, l’amphithéâtre, la conciergerie, les showrooms et le restaurant d’entreprise, tous réunis autour du patio. Ce sont à la fois des espaces distincts mais ouverts offrant des conditions de travail source de partage et de rencontres, mais aussi des espaces «vitrines» destinés aux visiteurs. Les showrooms sont une vitrine active de l’écosystème avec ces salons de présentations orientés vers le lac, véritable fenêtre sur la nature.
Les plateaux de bureaux R+1 & R+2
L’ensemble des bureaux est irrigué par quatre noyaux de distribution qui comportent chacun un escalier, des sanitaires et les liaisons techniques verticales indispensables au bon fonctionnement des niveaux. Deux d’entre eux comportent des ascenseurs, les deux restants possédant néanmoins les trémies en attente de cet équipement. Depuis le hall principal, l’ensemble de ces noyaux est facilement accessible en rez-de-chaussée, permettant ainsi aux salariés de regagner rapidement leur espace de travail. Les bureaux en attique et le jardin sur le toit. Ce niveau par rapport au R+1 et au R+2 n’est que partiellement construit ; il rassemble les bureaux de direction générale, du comité de direction, la communication, un restaurant installé sur la terrasse supérieure sous les ombrières sommitales en couronnement vers le sud. Les jardins en R+3 sont accessibles également depuis le patio par des terrasses et escaliers enroulés autour de la grande place intérieure.


Des façades transparentes mais protectrices
Le bâtiment écosystème est entouré en périphérie d’un « bosquet » de poteaux en bois et métal, formant un péristyle qui installe une façade épaisse et filtrante autour des bureaux. Elle supporte les éléments de protection solaire ainsi que des éléments techniques liés à l’entretien. Cet assemblage organique issu de l’observation de la nature formera pour CEVA un lieu unique et une identité respectueuse du vivant, ancrée dans la localité et par cette figure affirmée dans son site, ouverte sur un monde en perpétuelle mutation.


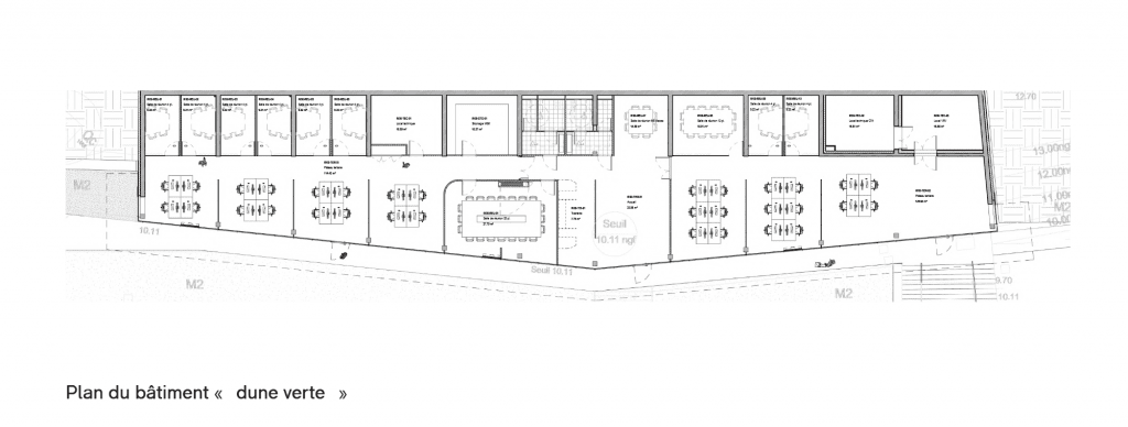
« La dune verte »
Le bâtiment s’insère discrètement dans le merlon créé entre le centre aquatique « La Calinésie » et le bâtiment principal. Le bâtiment imaginé comme une lanière dans la continuité du talus, épouse ainsi la forme de celui-ci et dialogue visuellement avec le bâtiment principal. Une terrasse en bois légèrement surélevée se développe côté lac et se prolonge sur l’avant de la façade principale offrant un large espace extérieur au personnel de CEVA. Le bâtiment se développe en RDC avec un espace de travail généreux, ouvert et transparent donnant sur une façade mur rideau toute hauteur semblable à celle du RDC du bâtiment principal et en proue sur la terrasse à l’Ouest. La toiture végétalisée et largement plantée dans le prolongement de la pente du talus permet une intégration discrète.
Des brise-soleils /ombrières horizontaux en métal thermolaqué assurent la protection solaire du rez-de-chaussée.
Des énergies vertes
La géothermie permet de gérer le chaud et le froid grâce à un champ de sondes de 150 m de profondeur. La présence de panneaux photovoltaïques sur les ombrières du stationnement (4500 m²) fournit la totalité des besoins en électricité du bâtiment. Les aménagements extérieurs sont réalisés avec des revêtements géosourcés : pavés/dalles en pierre calcaire et pavés en argile avec des joints enherbés, assurant une perméabilité des sols. Des gabions en pierre concassée assurent le soutènement du cheminement vers le lac . L’eau de pluie est récupérée par un système qui permet son stockage et l’arrosage du jardin intérieur. Le paysage existant renforcé par de nombreuses plantations permet de répondre aux enjeux de biodiversité: enjeux de renforcement de la diversification du biotope, enjeux d’indice de chaleur et enjeux de qualité de vie des usagers du site. L’ensemble des espaces paysagers constitue autant de niches écologiques en mobilisant les strates cryptogamiques, herbacées, arbustives et arborées. Toujours dans le respect de l’environnement, les entreprises ayant travaillé sur le chantier du projet sont des entreprises locales, toutes de Nouvelle-Aquitaine.